Цилиндры гидравлические с полым штоком двусторонние с гидравлическим возвратом от 33 до 140 тонн.
Усилие: 33 - 140 т
Рабочее давление: 700 бар
В принципе одинаковые области применения как и модель YCS, но с гидровозвратом штока, что позволяет автоматизировать рабочий процесс.
Цилиндры гидравлические с полым штоком двусторонние с гидравлическим возвратом от 33 до 140 тонн.
Усилие: 33 - 140 т
Рабочее давление: 700 бар
В принципе одинаковые области применения как и модель YCS, но с гидровозвратом штока, что позволяет автоматизировать рабочий процесс.
|
Размер цилиндра
тонн
|
Модель |
Артикул
4025092*
|
Сила домкрата
кН
|
Ход штока
мм
|
Площадь
см2
|
Макс. объем топлива
см3
|
Высота
мм
|
Констр. высота
мм
|
Наруж. диам. цилиндра
мм
|
Вес
кг
|
|
33
|
YCH-33/150
|
*150965 |
335/180
|
150
|
47.9 | 716 | 310 |
33
|
114 | 19 |
| 33 | YCH-33/250 | *150972 | 335/180 | 250 | 47.9 | 1200 | 415 | 33 | 114 | 25 |
|
62
|
YCH-62/250
|
*150989 |
618/300
|
250
|
88.3 | 2220 | 452 |
55
|
163 | 55 |
|
93
|
YCH-93/250
|
*150996 |
930/450
|
250
|
133.0 | 3320 | 465 |
55
|
193 | 82 |
|
100
|
YCH-100/40
|
*151009 |
1000/500
|
40
|
143.0 | 578 | 190 |
55
|
200 | 38 |
|
140
|
YCH-140/200
|
*151016 |
1400/700
|
200
|
200.2 | 4080 | 383 |
80
|
253 | 115 |
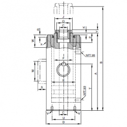
| Модель | YCH-33/150 | YCH-33/150 | YCH-33/150 | YCH-33/150 | YCH-33/150 | YCH-33/150 |
| A, мм | 300 | 405 | 440 | 450 | 175 | 365 |
| B, мм | 450 | 655 | 690 | 700 | 215 | 565 |
| C, мм | 33 | 33 | 55 | 55 | 55 | 80 |
| D, мм | 114 | 114 | 163 | 193 | 200 | 253 |
| E, мм | 90 | 90 | 130 | 150 | 155 | 195 |
| F, мм | 67 | 67 | 105 | 120 | 125 | 160 |
| J, мм | 92 | 62 | 96 | 110 | 110 | 145 |
| K, мм | 3 | 3 | 5 | 5 | 5 | 5 |
| M, мм | 120 | 120 | - | - | - | - |
| O, мм | M48x1.5 | M48x1.5 | M78x1.5 | M85x2 | M85x2 | M115x2 |
| P, мм | 30 | 30 | 40 | 45 | 45 | 50 |
| R, мм | 5 | 5 | 5 | 5 | - | - |
| S, мм | 51 | 51 | 24 | 30 | 24 | 30 |
| T, мм | - | - | 290 | 290 | 115 | 240 |
| U, мм | 92 | 92 | 135 | 160 | 165 | 210 |
| V, мм | 4xM10 | 4xM10 | 4xM12 | 4xM16 | 4xM16 | 4xM16 |
| W, мм | 40 | 40 | 50 | 65 | - | - |
| X, мм | M110x2 | M110x2 | M160x3 | M190x3 | - | - |
| Y, мм | 10 | 10 | 12 | 15 | 15 | 18 |